深圳智通工业设计有限公司
网址:www.joyjoin.com.cn
电话:0755-8860 6400
联系人:沈小姐
手机号:13724696885
邮箱:zt@joytoo.com.cn
“有竹百竿,有香一炉,有书千卷,有酒一壶,如是足矣”——南宋·杨国宝《题所居壁》。

南宋陆游,将他的“老学庵”筑于镜湖之滨,开门临水,启窗见山,心游神驰,好不自然。林黛玉的“潇湘馆”也是“翠竹掩映,婆娑玉立,石子漫路,小溪潺潺,绕阶缘房”。可见古代文人理想的书斋应是明净至简,窗外有水有树,斋中有几有椅,有书插架,有花插瓶,一炉沉香,一盏清茶。

本次案例中,设计师延续厚重的书斋文化,回溯过去,探寻文化根脉,打造全新的临湖书斋——人才书吧。
麒麟山庄人才书吧位于深圳人才研修院内,背靠麒麟山,面朝天鹅湖,环境清幽,风景秀丽,是书斋建造的理想之地。整个书斋被水系包围,就像是悬浮在水面上,赋予其生命和自然的力量,也符合文人对书斋的环境需求。

外立面采用极简纯白设计,露台向湖中延伸,与水面的倒影相得益彰,建筑与湖水、树木自然地结合在一起,融入湖光山景中。

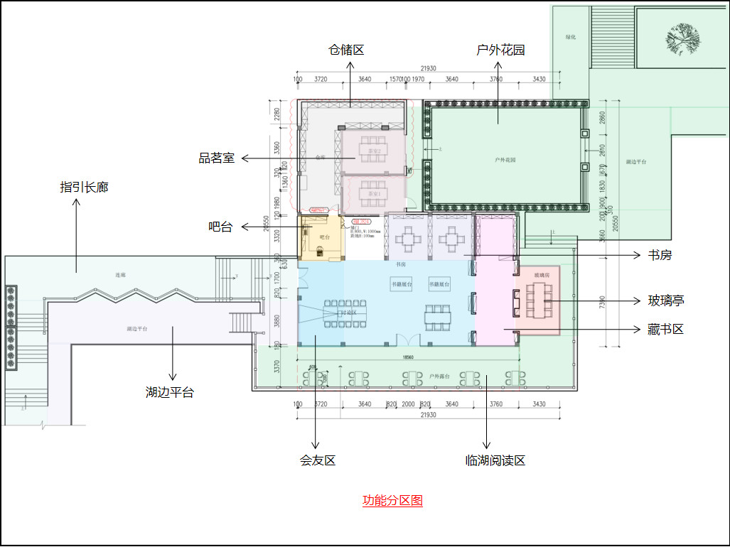
书吧空间划分出会友区、藏书区、书房、品茗室、户外花园及以山水构建出古时书斋中的各种使用场景,创造出一种私家书斋体验感。
沿着湖边长廊缓步而上至书吧内,映入眼帘的是一副古色古香的场景,深灰色的地面、浅灰色的墙、中式实木家具、一盏盏暖黄色的灯光,身心瞬间感到放松与宁静。中国人的亲木性是骨子里带着的,因为木有温和敦厚的品质,贴合中国人的心性,因此书吧以实木书架、桌椅为主要陈设,以丹青字画、花架盆景、中式灯具辅以装饰,起到画龙点睛的作用,营造了浓厚的中国古典文化气息,更具亲和力,也更契合中国文人的文化内核。


通过三面落地玻璃,对自然光线和景色的巧妙引入,使内部空间充满盎然生机,临窗见山水,心游神驰,好不自然。



以实木书架三面围合而成的半封闭书房是中国古代书斋的缩影,内置红木长桌一张,椅子四把,以丹青笔墨辅之,旁置文竹、松柏盆景。空间相对独立,利于文人墨客默读书卷,静思独处。

在东部露台处,由向外凸出的玻璃围合而成的“亭”,是室内外融合的极致体现。蓝天、白云、青山、绿水融入室内,从书中抬头就是另一番风景。阳光随着光线的移动呈现出明与暗的相互交织,让人能感受时间的轨迹。正是明净至简,窗外有水有树,斋中有几有椅,一卷书籍,一壶清茶的理想实现。


建筑南部长露台之上,搭建玻璃雨棚,设置些许户外桌椅,形成临湖阅读区。该区域悬浮于天鹅湖之上,三面环水,一张桌、一把椅、一本书、一壶茶,即可静坐感受微风拂面的温柔。当阳光照射在湖泊上,波光粼粼的光影变化跃然眼前,当雨水滴落在湖面上时亦能看到片片涟漪,颇具雅趣。

沿着临湖阅读区前行,视野豁然开朗,潜藏在绿植中的一隅茶室跃然眼前。茶室内部没有过多的装饰,素色墙面,一画、一灯、一茶、一友,或品茗沉思,或商略古今,尽显风雅。



项目名称:麒麟山庄人才书吧
项目类型:书吧
项目地址:深圳南山西丽
项目面积:500㎡
设计方:智通工业设计
- 2023-04-20浅析锂离子电池工厂中清洗房排水沟水篦子的选型设计
- 2023-04-13浅析锂离子电池厂房中燃气锅炉房可燃气体探测器设计
- 2023-03-30分容电源间的排风量和送风量计算
- 2023-03-23工业厂房的室外设备检修平台的防护栏杆设计
- 2023-03-16浅析锂离子电池厂房中铅酸蓄电池电动叉车充电区可燃气体探测器设计
- 2023-03-09锂离子电池厂房中分容间的冷负荷计算
- 2023-01-12鞋柜排风管道美化设计
- 2023-01-05换鞋区的排风如何设计
- 2022-12-29浅谈锂离子电池厂房中并联电缆的选用与施工
- 2022-12-26锂离子电池厂房搅拌罐废水系统排水设计
